Le Petit Versailles

T1 transformé en T2

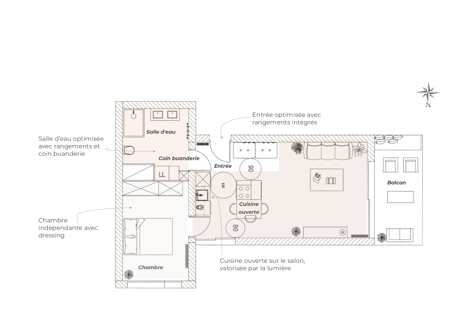
Volumes optimisés, fonctions repositionnées, circulations améliorées

Quand chaque mètre carré compte, chaque choix transforme la vie

Cet appartement présentait de vraies contraintes :

une entrée trop grande, des fonctions qui se chevauchaient et un manque de rangements qui compliquait le quotidien.

L’objectif : redonner du sens à chaque mètre carré.

Avant :

  • Entrée trop grande

  • Fonctions mélangées

  • Manque de rangements

Après :

  • Circulation clarifiée

  • Chambre indépendante

  • Cuisine ouverte et lumineuse

+ 11 m² jusque‑là non valorisés, désormais pleinement exploités

La pièce de vie

Optimisation de la surface utile

Nous avons ouvert la cloison et réinvesti le grand hall d’entrée pour y installer la cuisine.

L’ancienne pièce multifonction devient un véritable espace de vie, lumineux et fluide.

La chambre indépendante

Création de la chambre indépendante

L’ancienne cuisine a été transformée en un véritable espace nuit, pensé pour offrir intimité et confort.
Cette nouvelle chambre permet de clarifier les fonctions et d’équilibrer l’ensemble de l’appartement.